< zurück

Pläne und Visualiserung

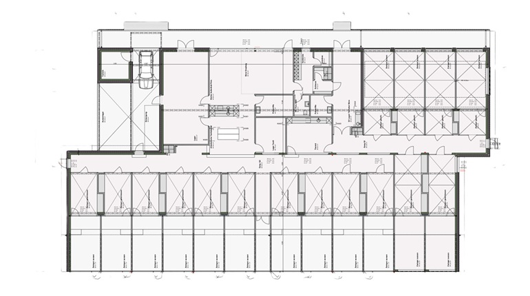
Wir planen die Zukunft: Ein transparenter Bau, damit die Tiere den Alltag erleben können, mit Sichtkontakt zu Menschen und Artgenossen.


Grundriss des Gebäudes der Tollwut Quarantäne Station Grundriss des Gebäudes der Tollwut Quarantäne Station Visualisierung der Aussenansicht der Tollwut Quarantäne Station Visualisierung der Innenausrichtung der Tollwut Quarantäne Station Visualisierung der Innenausrichtung der Tollwut Quarantäne Station Visualisierung des Innenhofs der Tollwut Quarantäne Station Visualisierung der Innenausrichtung der Tollwut Quarantäne Station Visualisierung der Innenausrichtung der Tollwut Quarantäne Station Visualisierung der Innenausrichtung der Tollwut Quarantäne Station Visualisierung der Innenausrichtung der Tollwut Quarantäne Station Visualisierung der Innenausrichtung der Tollwut Quarantäne Station


< zurück